Trước khi có ý định chọn mua bồn cầu thì bạn cần tìm hiểu kích thước bồn cầu có chiều dài, chiều rộng bao nhiêu. Yếu tố này sẽ giúp bạn tránh được trường hợp nhà vệ sinh quá nhỏ mà sử dụng bồn cầu quá to. Chính vì thế, bài viết dưới đây huthamcauvanphat.com sẽ cung cấp cho khách hàng những thông tin chính xác về kích thước bồn cầu và cách lựa chọn chuẩn nhất.
Kích thước bồn cầu tiêu chuẩn là gì?

Trên thị trường có rất nhiều thương hiệu bồn cầu khác nhau, với mỗi thương hiệu sẽ có những dòng bồn cầu có thiết kế khác nhau. Do đó, không có bất kỳ một quy chuẩn nào về kích thước bồn cầu. Kích thước bồn cầu chuẩn là phù hợp với diện tích nhà tắm, hài hòa với các nội thất nhà vệ sinh khác trong không gian nhà tắm của bạn.
Bồn cầu sẽ có những phân loại khác nhau như bồn cầu 1 khối, bồn cầu 2 khối, bồn cầu treo tường, bồn cầu thông minh. Do đặc thù của từng thương hiệu sẽ có công nghệ, kích thước khác nhau. Do đó sẽ có những tính năng cùng giá thành sản phẩm khác nhau.
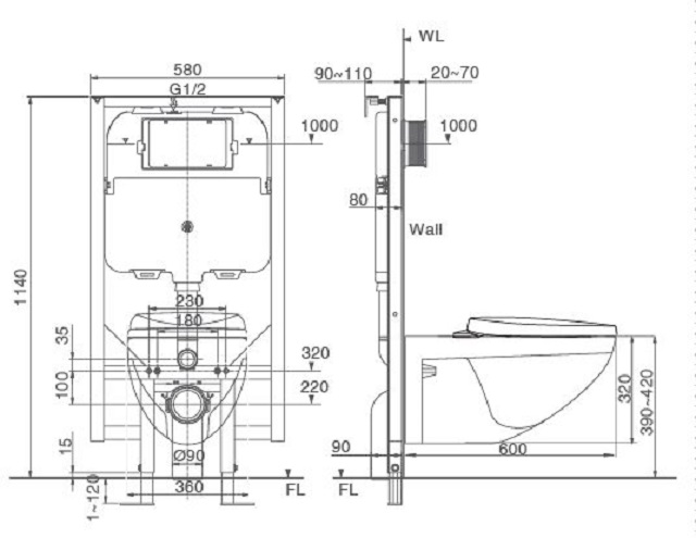
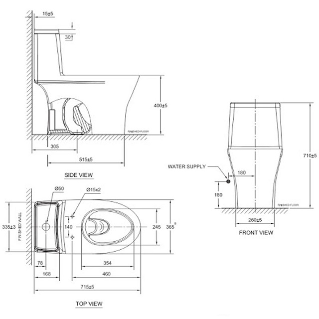
Các loại kích thước lắp đặt bồn cầu.
Dưới đây là một số kích thước bồn cầu phổ biến được khách hàng lựa chọn nhiều nhất hiện nay mà bạn bạn có thể tham khảo.
Kích thước bồn cầu 1 khối 778x400x655(mm)

Bồn cầu 1 khối 778x400x655(mm) mang đến sự thoải mái trong quá trình sử dụng. Bồn cầu 1 khối có phần két nước đi liền nên chúng có kích thước lớn hơn so với bồn cầu 2 khối và treo tường vừa có tính thẩm mỹ cao mà lại còn giúp cho phòng tắm tăng tính sang trọng. Với những gia đình có không gian phòng tắm rộng sử dụng bồn cầu 1 khối sẽ là sự lựa chọn hoàn hảo dành cho bạn.
Kích thước bồn cầu 2 khối 365(R)x750(D)x740(C)mm

Bồn cầu 2 khối 365x750x740(mm) dành cho những gia đình có không gian phòng tắm bé, với mong muốn tiết kiệm diện tích. Và hiện nay dòng bồn cầu 2 khối này chủ yếu được các hộ gia đình có phòng tắm hẹp ưa chuộng sử dụng.
Kích thước bồn cầu vệ sinh trẻ em

Bồn cầu trẻ em thường có kích thường nằm trong khoảng 400x700x650(mm). Hiện nay, bồn cầu trẻ em đang được sử dụng rộng rãi tại các gia đình có không gian nhà vệ sinh rộng và muốn cho con nhỏ thuận lợi sử dụng và còn giúp cho trẻ ý thức được việc tự chủ khi đi vệ sinh.
Kích thước bồn cầu treo tường

Con số giao động của kích thước bồn cầu treo tường có thể đạt trong khoảng 370x700x400(mm). Khi thực hiện lắp đặt đòi hỏi người thợ phải có tay nghề cao mới thi công nhanh chóng và dễ dàng, bởi khi lắp đặt phải chú ý về độ sâu của sản phẩm.
Kích thước bồn cầu xổm

Với kích thước giao động 485x426x250(mm) bồn cầu xổm hiện nay ít được sử dụng ở những không gian sang trọng. Thế nhưng có thể bạn lại không biết, với kiểu dáng này sẽ giúp chúng ta có tư thế đi vệ sinh khoa học, hạn chế mắc các bệnh về hậu môn trực tràng.
Kích thước bồn cầu của một số thương hiệu nổi tiếng
Với các dòng thương hiệu bồn cầu nổi tiếng hiện nay như Inax, Toto, Viglacera, Thiên Thanh, Caesar, American… thì bạn có thể thoải mái lựa chọn thương hiệu mà mình yêu thích. Và đối với các thương hiệu sẽ có kích thước hoàn toàn khác, dưới đây là các thông số kích thước bồn cầu thông dụng của các sản phẩm này, bạn cùng theo dõi nhé!
Kích thước bồn cầu Inax

Inax là thương hiệu nổi tiếng với mẫu mã sản phẩm đa dạng về kiểu dáng và mỗi một kiểu dáng sẽ có kích thước, ký hiệu sản phẩm khác nhau.
Kích thước bồn cầu Inax 1 khối
- AC-1017R+CW-KB22AVN: 850x400x588
- AC-991R+CW-KA22AVN: 760x636x380
- AC-2700+CW-KA22AVN: 810x424x642
- AC-2700+CW-H17VN: 810x424x624
Kích thước bồn cầu Inax 2 khối
- 306 (C-306VA): 744x772x440
- C117VA: 770x696x370
- 504 (C-504VAN): 756x727x390
- C-504A+CW-S15VN: 756x727x390
Kích thước bồn cầu Inax treo tường
- AC-22P+CW-KA22AVN: 640x366x365
- AC-22PVN: 640x366x365
- AC-23P+CW-H18VN: 760x380x636
Kích thước bàn cầu Toto

Toto là bồn cầu có thương hiệu nổi tiếng được sử dụng rộng rãi và với nhiều thông số kích thước khác nhau đem đến sự lựa chọn phong phú cho người tiêu dùng. Hơn nữa, Toto còn đáp ứng được nhu cầu sử dụng của nhiều đối tượng khách hàng.
Kích thước bồn cầu Toto 1 khối
- MS887T8: 727x657x428
- MS636CDW10: 740x670x490
- MS914T2: 710x633x450
- MS636CDRW12:740x670x490
Kích thước bồn cầu Toto 2 khối
- CS818DT2: 700x806x378
- CS945PDW4: 690x809x396
- CS320DRT 8: 695x765x380
- CS351DT2: 753x760x350
Kích thước bồn cầu Toto treo tường
- CW824PJ: 525x390x360
- CW822NJWS: 540x400x360
Kích thước bồn cầu Viglacera

Viglacera là sản phẩm có giá thành phải chăng, phù hợp với mọi gia đình. Bên cạnh đó mẫu mã đa dạng mang lại không sự đa dạng cho mọi không gian phòng tắm nhà bạn.
Kích thước bồn cầu Viglacera 1 khối
- V37: 755x415x715
- V45: 680x382x725
- V19: 680x360x745
- V35: 691x366x725
Kích thước bồn cầu Viglacera 2 khối
- VI88: 720x375x715
- VI77: 673x374x735
- VI66: 620x368x780
Kích thước bồn cầu Thiên Thanh

Bồn cầu Thiên Thanh không quá nổi tiếng như các thương hiệu khác nhưng nó lại luôn được người tiêu dùng ưu tiên bởi chất lượng sản phẩm tương xứng với giá thành, thiết kế đơn giản và hiện đại.
Kích thước bồn cầu Thiên Thanh 1 khối
- Sky K6530HS2T: 635x400x795
- Star K5530HS2T: 725x385x880
- Sun K5439HS2T: 700x400x830
- Gold K3139HS2T: 710x410x665
Kích thước bồn cầu Thiên Thanh 2 khối
- Sea B626TS2T: 670x420x390
- King B4829TS2T: 670x420x390
- Ruby B0707TGTT: 680x420x390
- Pisa B1212TS2T: 660x400x390
Kích thước bồn cầu Caesar

Caesar hiện nay cho ra đời nhiều mẫu bồn cầu sang trọng, đáp ứng được đầy đủ công năng cũng như tính thẩm mỹ. Nếu như bạn đang có ý định lắp đặt bồn cầu thì có thể tham khảo một số kích thước phù hợp dưới đây của Caesar.
Kích thước bồn cầu Caesar 1 khối
- CD1356: 720x400x630
- CD1375: 725x395x715
- CPT1530: 540x360x355
- C1353: 710x500x640
Kích thước bồn cầu Caesar 2 khối
-
- CT1325: 690x370x790
- CD1331: 740x390x790
- CD1346: 720x380x760
- CPT1332: 690x370x740
Kích thước bồn cầu American

Bồn cầu American là sự kết hợp giữa 2 nền văn hóa Mỹ và Nhật Bản, đây chắc chắn sẽ đem đến nét đẹp độc đáo cà vô cùng ấn tượng với thiết kế nhà vệ sinh cho các gia đình.
Kích thước bồn cầu American 1 khối
- 2309-WT: 715x335x710
- WP-1830: 744x450x710
- VF-2530: 720x535x725
- VF-2011: 757x365x656
Kích thước bồn cầu American 2 khối
- 2307-WT: 741x385x760
- VF-2398: 717x390x758
- VF-2314: 711x365x710
- VF-2013: 718x366x728
Xem thêm: Có nên ký hợp đồng hút hầm cầu định kỳ cho doanh nghiệp và chung cư?
Kinh nghiệm chọn kích thước bồn cầu

Lựa chọn bồn cầu theo diện tích phòng
Nếu gia đình có không gian phòng tắm rộng có thể lựa chọn những mẫu bồn cầu 2 khối cao cấp hoặc bồn cầu treo tường. Điều này vừa giúp không gian phòng tắm được tối ưu mà còn mang đến vẻ hiện đại, bắt mắt. Hơn nữa, gia đình có không gian phòng tắm có diện tích rộng thì bạn có thể lựa chọn những mẫu bồn cầu 1 khối hoặc cảm ứng thông minh. Đây là sản phẩm có thiết kế hiện đại, hợp tiêu chuẩn, đem lại sự thoải mái cho người dùng.
Lựa chọn bồn cầu theo giá tiền
Lựa chọn bồn cầu theo giá tiền là vấn đề được nhiều người quan tâm, vì không phải gia đình nào cũng có điều kiện sử dụng những mẫu bồn cầu hiện đại, có giá cả đắt đỏ. Do đó, các hãng đã cho ra thị trường những dòng bồn cầu có chi phí khác nhau nhưng vẫn đảm bảo về chất lượng sản phẩm.
>> XEM THÊM: Dịch Vụ Hút Hầm Cầu Bà Rịa Vũng Tàu
Nên mua bồn cầu giá rẻ ở đâu?
Một trong những địa chỉ uy tín cung cấp bồn cầu cao cấp từ các thương hiệu trong và ngoài nước mà bạn có thể tham khảo là huthamcauvanphat.com. Tại đây, khách hàng sẽ được tư vấn miễn phí , giúp bạn yên tâm lựa chọn sản phẩm phù hợp nhất. Bên bờ đó, huthamcauvanphat.com cũng sở hữu đội ngũ nhân viên nhiệt tình, chuyên nghiệp, được người tiêu dùng đánh giá cao và bình chọn là địa chỉ uy tín trong lĩnh vực này.
Trên đây là những thông tin về kích thước bồn cầu và cách lựa chọn sản phẩm phù hợp với không gian phòng tắm của bạn. Lựa chọn đúng bồn cầu không chỉ giúp phòng tắm trở nên đẹp mắt mà còn mang lại cảm giác giác thoải mái, tiện nghi cho người sử dụng. Chúc bạn tìm được sản phẩm ưng ý nhất!
